Hier Bilder & Anleitungen wie Du eine Navihalterung für Deine Vespa baust. Lass Dich inspirieren und teile deine Lösung mit uns!
1 Vechs Style
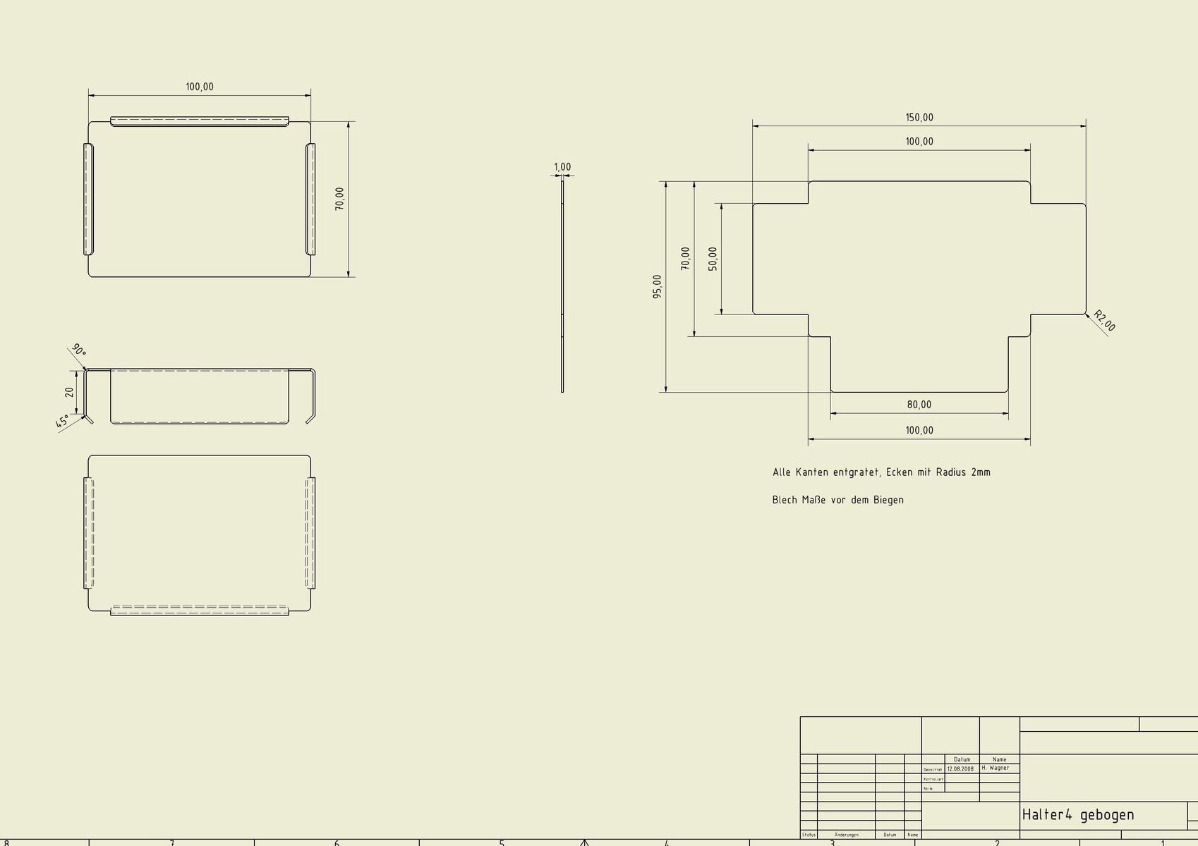
Ich hab mir in Inventor einen Halter für mein Navi Garmin Nüvi 200 gebaut. Die Bilder mit den technischen Zeichnungen stell ich euch mal mit Beispielphotos rein. Wenn jemand die Zeichnungen für AutoCAD bzw. Inventor von Autodesk haben möchte, dann bitte ne PN an mich.
Die Größe des Navi ist: (mm) 141 x 139 x 70
Das Navi kostet mit Deutschlandkarte nur 99€, also genau das richtige für die Vespa. ![]()
Das Navi kann im Winkel stufenlos verstellt werden und durch verdrehem am Spiegel auch links und rechts. Es liegt so keine Stelle am Gehäuse auf.
Innen kommt das Schaumstoff zur Vibrationsdämmung zum tragen, somit hängt das Navi fest im Halter und kann nicht verrutschen.
Nun die Bilder ... Der eingebaute Halter mit Navi an der Vespa![]()
![]()
![]()
![]()
![]()
![]()
![]()
![]()
![]()
![]()
![]()
![]()
![]()
2 Labelsucker Style
Notfalls kann man sich auch was für die Löcher der Reserveradhalterung basteln. Habe ne Plexiglasscheibe genommen, 2 x M8 Schrauben mit Kontermuttern und in die vorhandenen Löcher geschraubt.
Original Halterung des Navi´s drauf und ab dafür.![]()
3 Thumsn Style
Eher konventionell unterwegs. Aber hält, noch nie abgestürzt und noch keinen Systemausfall gehabt. Prinzip von nem Kollegen übernommen!![]()
![]()
![]()
4 Dein Style ???
Wie befestigt Du Dein Navigationsgerät an Deiner Vespa?
Editiere diesen Beitrag und füge Deine Anleitung & Bilder ein.
Details
- Trifft auf folgende Vespa Modelle zu:
- Alle
