1. Vespa Forum
    1. Unerledigte Themen
  2. Dashboard
  3. Galerie
    1. Alben
    2. Karte
  4. Lexikon
    1. Letzte Änderungen
  • Anmelden
  • Registrieren
  • Suche
Vespa Forum: VespaOnline Vespa Forum: VespaOnline
Vespa Explosionszeichnungen
  • Alles
  • Vespa Explosionszeichnungen
  • Forum
  • Galerie
  • Lexikon
  • Seiten
  • Erweiterte Suche
  1. Vespa Forum: VespaOnline - Entdecke die Welt der klassischen Vespa-Roller und teile deine Leidenschaft
  2. Lexikon
  3. Vespa Explosionszeichnungen
SIP Scootershop | Vespa Tuning & Scooter Parts

Explosionszeichnungen für Vespa PK 50 Automatik

  • mono
  • December 29, 2018 at 15:57
  • December 29, 2018 at 16:12
  • 10,394 mal gelesen
  • Einige Explosionszeichnungen für die Vespa PK 50 Automatik

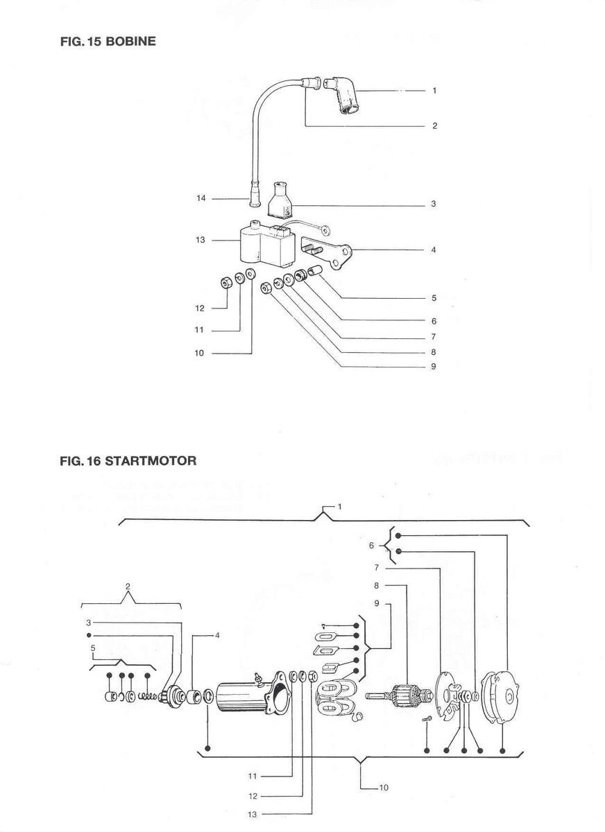
    1 Motor

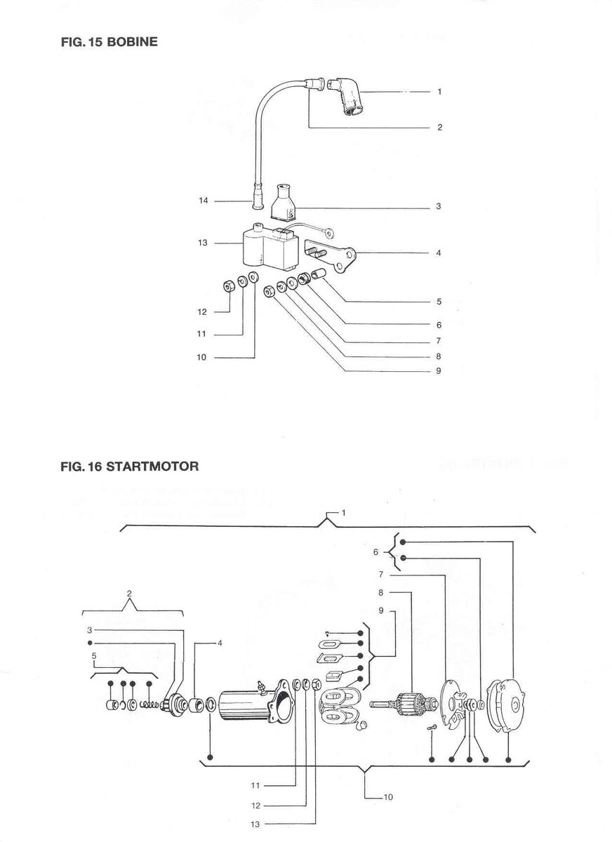
    2 Anlasser und Zündung

    3 Benzintank und Sitzbank

    4 Bremstrommel und Bremse vorne

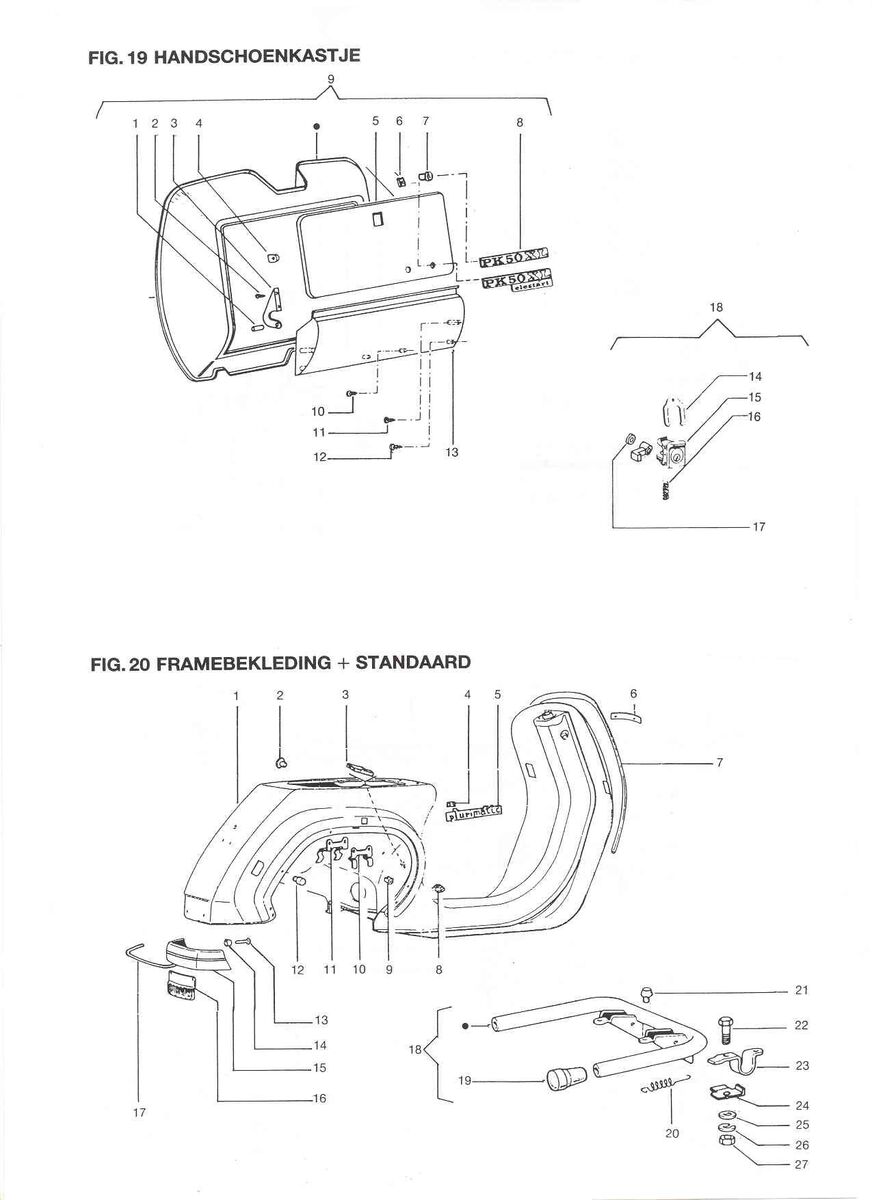
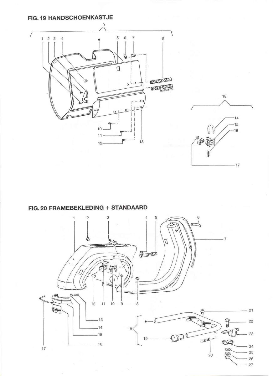
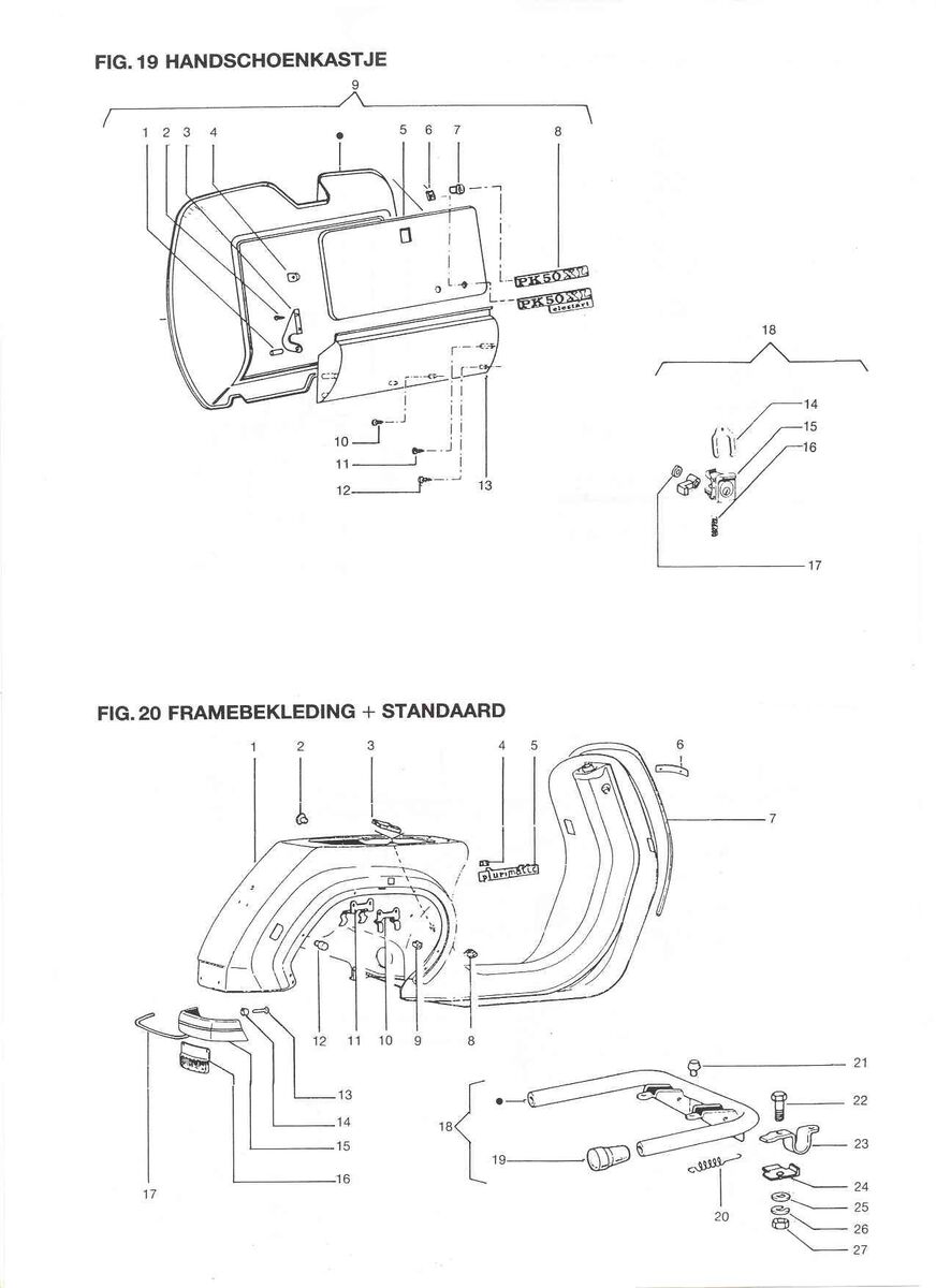
    5 Handschuhfach und Rahmen

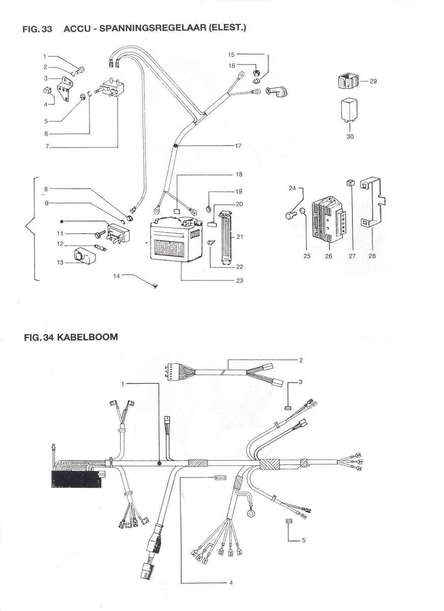
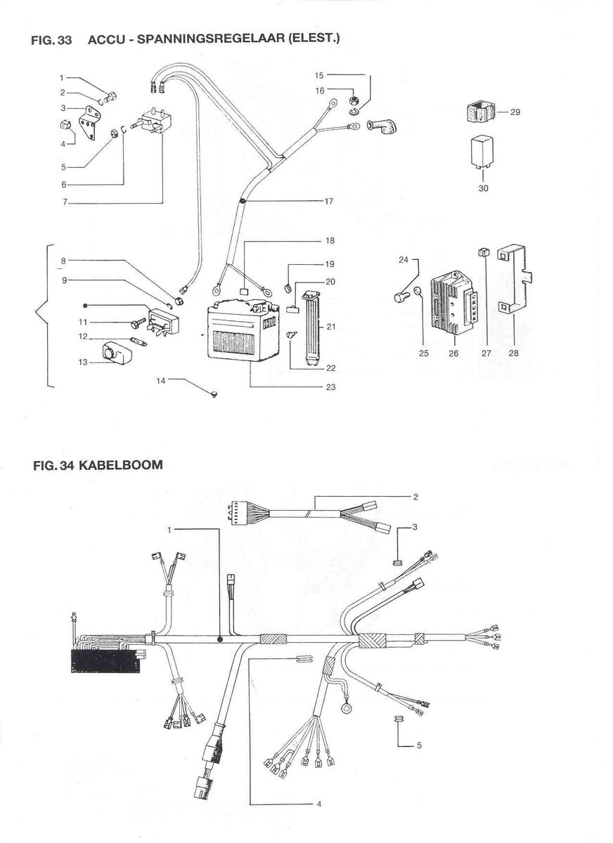
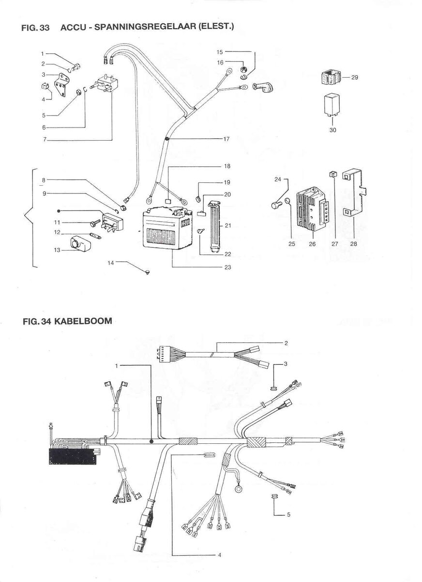
    6 Kabelbaum

    7 Lager

    8 Lampen und Blinker

    9 Lenker und Griffe

    10 Rahmen

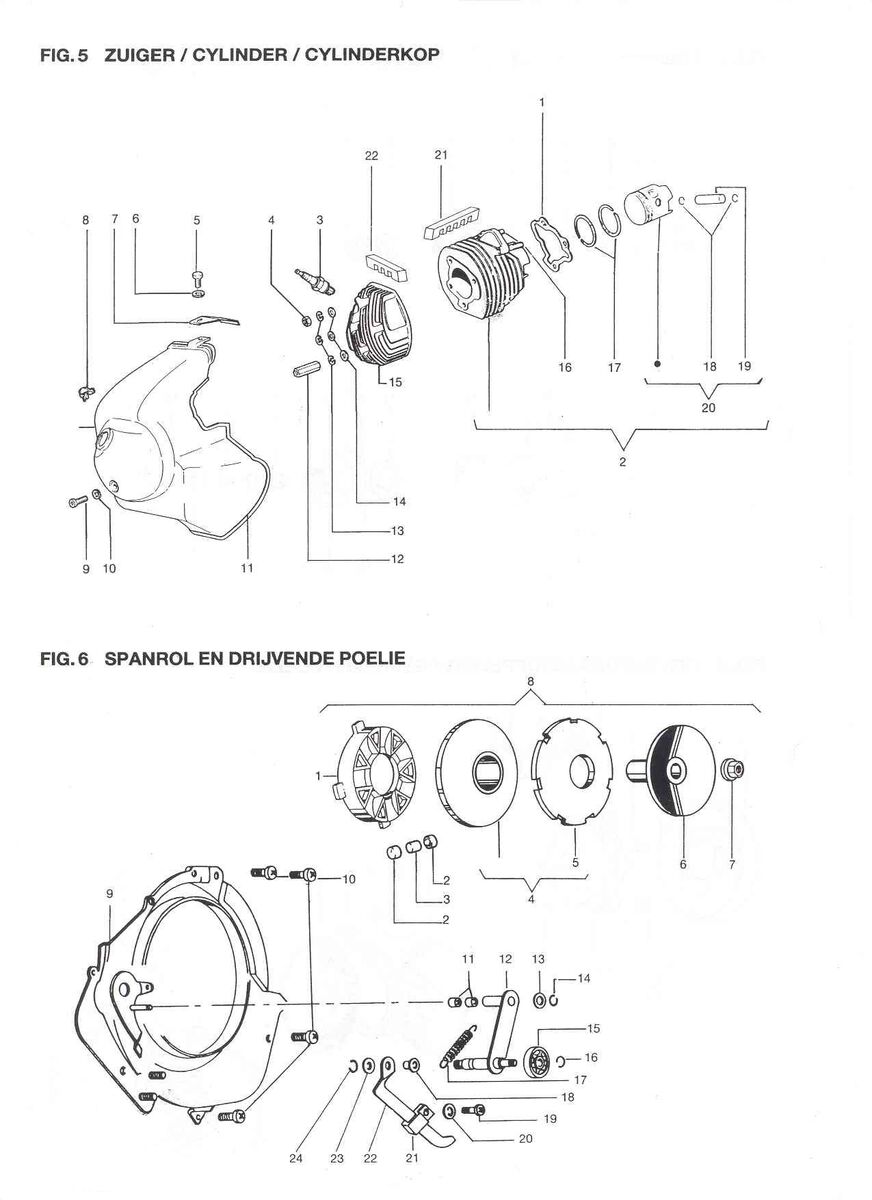
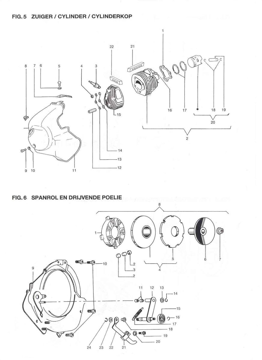
    11 Zylinder

    12 Züge

    13 Vordergabel und Federbein

    14 Anbauteile

    Details

    Trifft auf folgende Vespa Modelle zu:
    PK 50 Automatik
    • Automatik
    • PK 50 Automatik

Teilen

  • Nächster Eintrag Explosionszeichnungen Vespa PK 50
  • PDF

Inhaltsverzeichnis

  • 1 Motor
  • 2 Anlasser und Zündung
  • 3 Benzintank und Sitzbank
  • 4 Bremstrommel und Bremse vorne
  • 5 Handschuhfach und Rahmen
  • 6 Kabelbaum
  • 7 Lager
  • 8 Lampen und Blinker
  • 9 Lenker und Griffe
  • 10 Rahmen
  • 11 Zylinder
  • 12 Züge
  • 13 Vordergabel und Federbein
  • 14 Anbauteile

Kategorien

  1. Vespa Anbauteile 18
  2. Vespa Reifen 6
  3. Vespa Bremsen 7
  4. Vespa Elektrik 16
  5. Vespa Vergaser 12
  6. Vespa Kupplung 4
  7. Vespa Motor 15
  8. Vespa Rahmen 12
  9. Sonstiges zur Vespa 20
  10. Vespa Literatur 8
  11. Vespa Schaltpläne 7
  12. Vespa Explosionszeichnungen 2
  1. Datenschutzerklärung
  2. Impressum
  3. Kontakt
  4. Geschichte der Vespa bei Wikipedia
  5. Nutzungsbedingungen
Made with ♥ in Bavaria
Lexikon, entwickelt von www.viecode.com
Community-Software: WoltLab Suite™